Novara Franklin TN
About Novara Subdivision in Franklin,TN
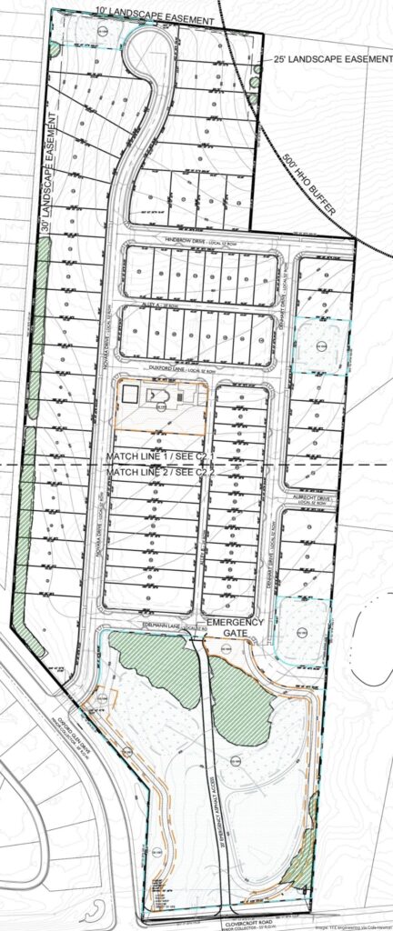
Province Builders has broken ground on Novara, a 30-acre, 75-home development in Franklin, Tennessee, featuring homes priced between $1 million and $1.4 million. The community aims to fill a local housing void by offering detached, 3,300 to 3,800-square-foot homes with access to Williamson County schools, featuring French and transitional designs by P. Shea Designs and JFY Designs
Novara Subdivision Builders
Province will build on 21 homesites while Celebration and Drees Homes will build on the remaining 54 homesites.
Novara Amenities
Walking trails, a dog park, and a centrally located amenity area will be offered with a total of 8 acres of green space as well.
Novara Plat Map

Novara Buyer Form. Please register below for more info and to stay in touch with future updates.